Listed by Shawn Carroll of NextHome Virtual
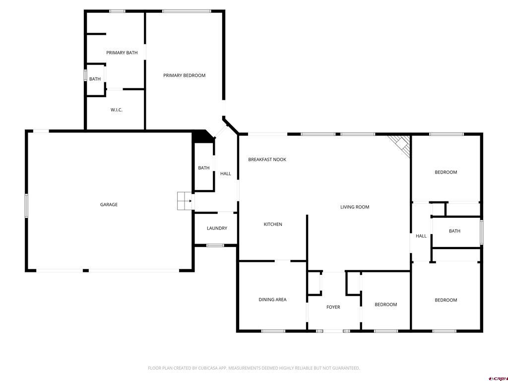
Built by local, reputable builder Byler Construction and lovingly maintained by its original owner, this single level home sits on a manageable 1/2-acre lot in the Columbine East neighborhood with its wide streets, larger lots and mature landscaping. The split floor plan offers four bedrooms (the 4th bedroom perfectly situated for an office), both formal and casual dining areas, and a large living room with a vaulted ceiling, corner gas fireplace and southern-facing windows. The master suite has private access to the back patio, a ceiling fan, an ensuite with separate tub and shower, a private water closet and a generous walk-in closet. The kitchen, situated between the formal dining room and the casual eating area, offers plenty of cabinetry and a counter bar. The range/oven, refrigerator, dishwasher and microwave as well as the washer and dryer are included. Step outside to an extra large covered southern back patio where you can relax with friends under string lights, grill on summer weekends, or enjoy peace and privacy surrounded by mature trees. The covered front porch invites morning coffee time while and the side patio offers a quieter spot for even more outdoor living. Efficient in-floor heat and an evaporative cooler for cooling in place for comfort and a new roof installed in April 2025 for peace of mind. Plenty of space in the 3-car garage with workbench plus there is extra concrete parking with room for an R/V or additional vehicles on the side of the garage. A storage shed is in place for gear, a sprinkler system fed by HOA irrigation (dues only $100/year) is in place as is a partially fenced yard. A dedicated garden area just needs a little topsoil to grow vegetables or flowers. Conveniently located with easy access to local amenities, this move-in-ready home combines thoughtful everyday convenience with the peaceful, country-like setting and community feel that make Columbine East properties so sought after — homes here rarely come on the market. Schedule a showing to experience the comfortable, relaxed lifestyle provided by this home and the beautiful Western Slope town of Montrose.

Listing Tools

Property Details of 2806 Bluebell Court

Property Details

Interior Features

Exterior Features

Utilities and Appliances

Community

Other Details

Map Location

Driving Directions

 The data relating to real estate for sale on this web site comes in part from the Internet Data Exchange (IDX) program of Colorado Real Estate Network, Inc. (CREN), © Copyright 2026. All rights reserved. All data deemed reliable but not guaranteed and should be independently verified. This database record is provided subject to “limited license” rights. Duplication or reproduction is prohibited.
Full CREN disclaimer

Real Estate listings held by companies other than Grace Golden Country Homes LLC contain that company's name.
Fair Housing Disclaimer

The data on this site was last updated February 11, 2026

Hi there! How can we help you?

Contact us using the form below or give us a call.

Send Us A Message:

I agree to receive marketing and customer service calls and text messages from Grace Golden Country Homes LLC. To opt out, you can reply 'stop' at any time or click the unsubscribe link in the emails. Consent is not a condition of purchase. Msg/data rates may apply. Msg frequency varies. Privacy Policy.

Do not fill in this field:

This site is protected by reCAPTCHA and the Google Privacy Policy and Terms of Service apply.

Hi there! How can we help you?

Contact us using the form below or give us a call.

Send Us A Message:

Do not fill in this field:

This site is protected by reCAPTCHA and the Google Privacy Policy and Terms of Service apply.

Hi there! How can we help you?

Contact us using the form below or give us a call.

Send Us A Message:

Do not fill in this field:

This site is protected by reCAPTCHA and the Google Privacy Policy and Terms of Service apply.

Do not fill in this field:

This site is protected by reCAPTCHA and the Google Privacy Policy and Terms of Service apply.

Do not fill in this field:

This site is protected by reCAPTCHA and the Google Privacy Policy and Terms of Service apply.

Do not fill in this field:

This site is protected by reCAPTCHA and the Google Privacy Policy and Terms of Service apply.

$

Do not fill in this field:

This site is protected by reCAPTCHA and the Google Privacy Policy and Terms of Service apply.