Listed by Jessica Likes of Century 21 West Slope Realty
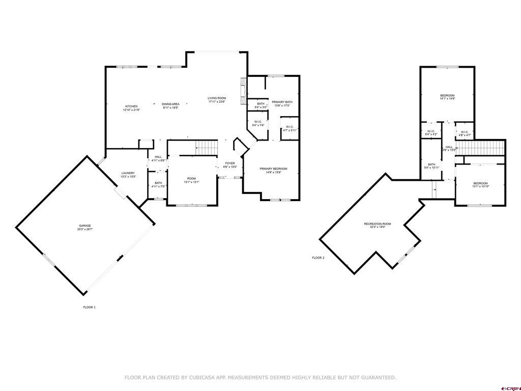
Welcome to this exceptional 2,927 sq ft custom-built 3 Bedroom, 2.5 Bath home, built in 2022, where thoughtful design meets high-end finishes—all set on 3.42 acres of serene, open space, located about 15 minutes Northwest of Cortez. From the moment you arrive, the breathtaking 360-degree mountain views and impressive curb appeal will leave you saying "WOW." With vistas that include Mesa Verde, Ute Mountain, The Blues, and the La Platas, this property offers a one-of-a-kind setting that’s equally captivating by day or under star-studded night skies. Inside, the home boasts a truly unique layout full of class and comfort, with vaulted ceilings and large picturesque windows. Featuring 3 bedrooms and 2.5 bathrooms, including a luxurious main-level primary suite, every detail has been carefully considered. The primary suite is finished with elegant Luxury Vinyl Tile flooring, two walk in closets, a soaking tub, and a spacious double-head shower for the ultimate retreat. The heart of the home is an open-concept living area, perfect for entertaining or relaxing in style. Enjoy a sprawling living room wired for surround sound, and an oversized kitchen that will impress with granite countertops, soft-close cabinets, a pot filler, large walk-in pantry, and stylish fixtures throughout. Forced air heating and cooling ensure year-round comfort, while the on-demand hot water heater adds everyday convenience. Upstairs are two bedrooms, and a LARGE BONUS ROOM that provides endless possibilities—whether you need a family room, game room, home theater, office, or additional guest space. Additional highlights include a 2 car garage, a spacious laundry room with extra storage, and a massive back deck ideal for outdoor gatherings, morning coffee, or simply soaking in the panoramic views. This is more than just a home—it's the opportunity to have your own sanctuary. Don’t miss your chance to own this beautiful home and property that can be your own slice of Colorado paradise.

Listing Tools

Property Details of 13205 Road 17.9

Property Details

Interior Features

Exterior Features

Utilities and Appliances

Community

Other Details

Map Location

Driving Directions

 The data relating to real estate for sale on this web site comes in part from the Internet Data Exchange (IDX) program of Colorado Real Estate Network, Inc. (CREN), © Copyright 2025. All rights reserved. All data deemed reliable but not guaranteed and should be independently verified. This database record is provided subject to “limited license” rights. Duplication or reproduction is prohibited.
Full CREN disclaimer

Real Estate listings held by companies other than Grace Golden Country Homes LLC contain that company's name.
Fair Housing Disclaimer

The data on this site was last updated November 17, 2025

Hi there! How can we help you?

Contact us using the form below or give us a call.

Send Us A Message:

I agree to receive marketing and customer service calls and text messages from Grace Golden Country Homes LLC. To opt out, you can reply 'stop' at any time or click the unsubscribe link in the emails. Consent is not a condition of purchase. Msg/data rates may apply. Msg frequency varies. Privacy Policy.

Do not fill in this field:

This site is protected by reCAPTCHA and the Google Privacy Policy and Terms of Service apply.

Hi there! How can we help you?

Contact us using the form below or give us a call.

Send Us A Message:

Do not fill in this field:

This site is protected by reCAPTCHA and the Google Privacy Policy and Terms of Service apply.

Hi there! How can we help you?

Contact us using the form below or give us a call.

Send Us A Message:

Do not fill in this field:

This site is protected by reCAPTCHA and the Google Privacy Policy and Terms of Service apply.

Do not fill in this field:

This site is protected by reCAPTCHA and the Google Privacy Policy and Terms of Service apply.

Do not fill in this field:

This site is protected by reCAPTCHA and the Google Privacy Policy and Terms of Service apply.

Do not fill in this field:

This site is protected by reCAPTCHA and the Google Privacy Policy and Terms of Service apply.

$

Do not fill in this field:

This site is protected by reCAPTCHA and the Google Privacy Policy and Terms of Service apply.